tvxaydung.com - Giá trị thực
No Result
View All Result
  • Login
  • Trang chủ
  • Tài liệu
    • All
    • Giao thông, hạ tầng
    • Quy hoạch, xây dựng
    • Thi công
    Bản vẽ chi tiết Rãnh dọc hình thang

    Bản vẽ chi tiết Rãnh dọc hình thang

    Bản vẽ thi công đê chắn cát

    Bản vẽ thi công đê chắn cát

    Bản vẽ điển hình đường đô thị

    Bản vẽ điển hình đường đô thị

    Bản vẽ điển hình đường đô thị 4 làn xe

    Bản vẽ điển hình đường đô thị 4 làn xe

    Biện pháp thi công dự án đường 42m

    Biện pháp thi công dự án đường 42m

    Bản vẽ thiết kế cảnh quan, công viên

    Bản vẽ thiết kế cảnh quan, công viên

    Trending Tags

    • Thư viện
      • All
      • Đồ án, luận văn
      • Sách
      • Tài liệu học tập
      • Tiêu chuẩn quy phạm
      TCCS 41:2022/TCĐBVN: Tiêu chuẩn khảo sát, thiết kế nền đường ô tô trên nền đất yếu

      TCCS 41:2022/TCĐBVN: Tiêu chuẩn khảo sát, thiết kế nền đường ô tô trên nền đất yếu

      TCCS 38:2022/TCĐBVN: Áo đường mềm – Các yêu cầu và chỉ dẫn thiết kế

      TCCS 38:2022/TCĐBVN: Áo đường mềm – Các yêu cầu và chỉ dẫn thiết kế

      TCCS 34:2020/TCĐBVN: Tiêu chuẩn cơ sở gờ giảm tốc, gồ giảm tốc trên đường bộ – Yêu cầu thiết kế

      TCCS 34:2020/TCĐBVN: Tiêu chuẩn cơ sở gờ giảm tốc, gồ giảm tốc trên đường bộ – Yêu cầu thiết kế

      TCCS 31:2020/TCĐBVN: Đường ô tô – Tiêu chuẩn khảo sát

      TCCS 31:2020/TCĐBVN: Đường ô tô – Tiêu chuẩn khảo sát

      TCVN 13592:2022 Đường đô thị – yêu cầu thiết kế

      TCVN 13592:2022 Đường đô thị – yêu cầu thiết kế

      TCCS 40:2022/TCĐBVN: Thi công và nghiệm thu mặt đường bê tông xi măng trong xây dựng công trình giao thông

      TCCS 40:2022/TCĐBVN: Thi công và nghiệm thu mặt đường bê tông xi măng trong xây dựng công trình giao thông

      Trending Tags

      • Khám phá
        • All
        • Phong thủy
        • Tiêu điểm
        • Tri thức
        Những yếu tố quyết định việc lựa chọn cọc khoan nhồi và tường vây

        Vật liệu đầu vào cọc khoan nhồi

        Những yếu tố quyết định việc lựa chọn cọc khoan nhồi và tường vây

        Những yếu tố quyết định việc lựa chọn cọc khoan nhồi và tường vây

        Bảng tra khối lượng thép tròn

        Bảng tra khối lượng thép tròn

        Kích thước khổ giấy A0, A1, A2, A3, A4, A5, A6, A7

        Kích thước khổ giấy A0, A1, A2, A3, A4, A5, A6, A7

        Yêu cầu về thiết kế đường ô tô

         Mặt cắt ngang

        Yêu cầu về thiết kế đường ô tô

        Tốc độ thiết kế

        Trending Tags

        • Thủ thuật
          Bê tông nhựa: phân loại và các chỉ tiêu kỹ thuật yêu cầu

          Bê tông nhựa: giám sát, kiểm tra và nghiệm thu

          Thi công bê tông nhựa

          Thi công bê tông nhựa

          Vật liệu chế tạo bê tông nhựa

          Vật liệu chế tạo bê tông nhựa

          Bê tông nhựa: phân loại và các chỉ tiêu kỹ thuật yêu cầu

          Bê tông nhựa: phân loại và các chỉ tiêu kỹ thuật yêu cầu

          Tần xuất thí nghiệm độ chặt bằng phễu rót cát

          Tần xuất thí nghiệm độ chặt bằng phễu rót cát

          Rãnh biên

          Rãnh đỉnh

          Trending Tags

          • Trang chủ
          • Tài liệu
            • All
            • Giao thông, hạ tầng
            • Quy hoạch, xây dựng
            • Thi công
            Bản vẽ chi tiết Rãnh dọc hình thang

            Bản vẽ chi tiết Rãnh dọc hình thang

            Bản vẽ thi công đê chắn cát

            Bản vẽ thi công đê chắn cát

            Bản vẽ điển hình đường đô thị

            Bản vẽ điển hình đường đô thị

            Bản vẽ điển hình đường đô thị 4 làn xe

            Bản vẽ điển hình đường đô thị 4 làn xe

            Biện pháp thi công dự án đường 42m

            Biện pháp thi công dự án đường 42m

            Bản vẽ thiết kế cảnh quan, công viên

            Bản vẽ thiết kế cảnh quan, công viên

            Trending Tags

            • Thư viện
              • All
              • Đồ án, luận văn
              • Sách
              • Tài liệu học tập
              • Tiêu chuẩn quy phạm
              TCCS 41:2022/TCĐBVN: Tiêu chuẩn khảo sát, thiết kế nền đường ô tô trên nền đất yếu

              TCCS 41:2022/TCĐBVN: Tiêu chuẩn khảo sát, thiết kế nền đường ô tô trên nền đất yếu

              TCCS 38:2022/TCĐBVN: Áo đường mềm – Các yêu cầu và chỉ dẫn thiết kế

              TCCS 38:2022/TCĐBVN: Áo đường mềm – Các yêu cầu và chỉ dẫn thiết kế

              TCCS 34:2020/TCĐBVN: Tiêu chuẩn cơ sở gờ giảm tốc, gồ giảm tốc trên đường bộ – Yêu cầu thiết kế

              TCCS 34:2020/TCĐBVN: Tiêu chuẩn cơ sở gờ giảm tốc, gồ giảm tốc trên đường bộ – Yêu cầu thiết kế

              TCCS 31:2020/TCĐBVN: Đường ô tô – Tiêu chuẩn khảo sát

              TCCS 31:2020/TCĐBVN: Đường ô tô – Tiêu chuẩn khảo sát

              TCVN 13592:2022 Đường đô thị – yêu cầu thiết kế

              TCVN 13592:2022 Đường đô thị – yêu cầu thiết kế

              TCCS 40:2022/TCĐBVN: Thi công và nghiệm thu mặt đường bê tông xi măng trong xây dựng công trình giao thông

              TCCS 40:2022/TCĐBVN: Thi công và nghiệm thu mặt đường bê tông xi măng trong xây dựng công trình giao thông

              Trending Tags

              • Khám phá
                • All
                • Phong thủy
                • Tiêu điểm
                • Tri thức
                Những yếu tố quyết định việc lựa chọn cọc khoan nhồi và tường vây

                Vật liệu đầu vào cọc khoan nhồi

                Những yếu tố quyết định việc lựa chọn cọc khoan nhồi và tường vây

                Những yếu tố quyết định việc lựa chọn cọc khoan nhồi và tường vây

                Bảng tra khối lượng thép tròn

                Bảng tra khối lượng thép tròn

                Kích thước khổ giấy A0, A1, A2, A3, A4, A5, A6, A7

                Kích thước khổ giấy A0, A1, A2, A3, A4, A5, A6, A7

                Yêu cầu về thiết kế đường ô tô

                 Mặt cắt ngang

                Yêu cầu về thiết kế đường ô tô

                Tốc độ thiết kế

                Trending Tags

                • Thủ thuật
                  Bê tông nhựa: phân loại và các chỉ tiêu kỹ thuật yêu cầu

                  Bê tông nhựa: giám sát, kiểm tra và nghiệm thu

                  Thi công bê tông nhựa

                  Thi công bê tông nhựa

                  Vật liệu chế tạo bê tông nhựa

                  Vật liệu chế tạo bê tông nhựa

                  Bê tông nhựa: phân loại và các chỉ tiêu kỹ thuật yêu cầu

                  Bê tông nhựa: phân loại và các chỉ tiêu kỹ thuật yêu cầu

                  Tần xuất thí nghiệm độ chặt bằng phễu rót cát

                  Tần xuất thí nghiệm độ chặt bằng phễu rót cát

                  Rãnh biên

                  Rãnh đỉnh

                  Trending Tags

                  No Result
                  View All Result
                  No Result
                  View All Result
                  Home Tài liệu Giao thông, hạ tầng

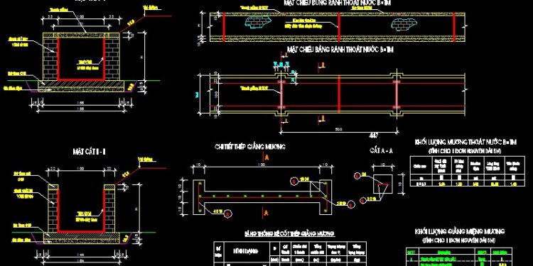
                  Bản vẽ rãnh hoàn trả

                  Wander Lam by Wander Lam
                  19/06/2021
                  in Giao thông, hạ tầng
                  211
                  2
                  Bản vẽ rãnh hoàn trả
                  214
                  SHARES
                  2.4k
                  VIEWS
                  Share on FacebookShare on Twitter

                  Thiết kế rãnh hoàn trả kích thước B = 0,6m và B = 1m.

                  Cấu tạo rãnh gồm:

                  • Thanh giằng mương bê tông cốt thép.
                  • Bê tông mũ C16.
                  • Gạch chỉ xây VXM M100.
                  • Trát VXM M100 dày 2cm.
                  • Bê tông đáy C16.
                  • Đá dăm đệm.

                  Tải ngay tại: DOWNLOAD NOW

                  Tags: rãnh bê tôngrãnh hoàn trả
                  Previous Post

                  Bản vẽ rãnh chịu lực qua đường

                  Next Post

                  Bản vẽ điển hình đường công vụ

                  Wander Lam

                  Wander Lam

                  Trong phúc có họa, trong họa có phúc; Donate STK: trunglam - Ngân hàng Vietinbank; Momo: 0969313833

                  Next Post
                  Bản vẽ điển hình đường công vụ

                  Bản vẽ điển hình đường công vụ

                  Comments 2

                  1. Huy says:
                    7 năm ago

                    Khá hữu ích. Thanks

                    Trả lời
                    • Wander says:
                      7 năm ago

                      cảm ơn bạn

                      Trả lời

                  Trả lời Hủy

                  Email của bạn sẽ không được hiển thị công khai. Các trường bắt buộc được đánh dấu *

                  • Trending
                  • Comments
                  • Latest
                  Bê tông nhựa: phân loại và các chỉ tiêu kỹ thuật yêu cầu

                  Bê tông nhựa: giám sát, kiểm tra và nghiệm thu

                  04/07/2021
                  Các loại tường chắn đất

                  Các loại tường chắn đất

                  28/06/2021
                  TCCS 31:2020/TCĐBVN: Đường ô tô – Tiêu chuẩn khảo sát

                  TCCS 31:2020/TCĐBVN: Đường ô tô – Tiêu chuẩn khảo sát

                  05/09/2023
                  TCVN 8863 : 2011 MẶT ĐƯỜNG LÁNG NHỰA NÓNG – THI CÔNG VÀ NGHIỆM THU

                  TCVN 8863 : 2011 MẶT ĐƯỜNG LÁNG NHỰA NÓNG – THI CÔNG VÀ NGHIỆM THU

                  19/06/2021
                  QCVN 07-9:2016/BXD Quy chuẩn Kỹ thuật Quốc gia về Các công trình hạ tầng kỹ thuật – Công trình quản lý chất thải rắn và Nhà vệ sinh công cộng

                  QCVN 07-9:2016/BXD Quy chuẩn Kỹ thuật Quốc gia về Các công trình hạ tầng kỹ thuật – Công trình quản lý chất thải rắn và Nhà vệ sinh công cộng

                  6
                  TCVN 8865 : 2011 MẶT ĐƯỜNG Ô TÔ – PHƯƠNG PHÁP ĐO VÀ ĐÁNH GIÁ XÁC ĐỊNH ĐỘ BẰNG PHẲNG THEO CHỈ SỐ ĐỘ GỒ GHỀ QUỐC TẾ IRI

                  TCVN 8865 : 2011 MẶT ĐƯỜNG Ô TÔ – PHƯƠNG PHÁP ĐO VÀ ĐÁNH GIÁ XÁC ĐỊNH ĐỘ BẰNG PHẲNG THEO CHỈ SỐ ĐỘ GỒ GHỀ QUỐC TẾ IRI

                  6
                  Bản vẽ thiết kế cầu Bê tông cốt thép dự ứng lực (đầy đủ)

                  Bản vẽ thiết kế cầu Bê tông cốt thép dự ứng lực (đầy đủ)

                  5
                  Bản vẽ rãnh chịu lực qua đường

                  Bản vẽ rãnh chịu lực qua đường

                  4
                  Những yếu tố quyết định việc lựa chọn cọc khoan nhồi và tường vây

                  Vật liệu đầu vào cọc khoan nhồi

                  04/08/2024
                  Những yếu tố quyết định việc lựa chọn cọc khoan nhồi và tường vây

                  Những yếu tố quyết định việc lựa chọn cọc khoan nhồi và tường vây

                  04/08/2024
                  Bảng tra khối lượng thép tròn

                  Bảng tra khối lượng thép tròn

                  28/05/2024
                  Kích thước khổ giấy A0, A1, A2, A3, A4, A5, A6, A7

                  Kích thước khổ giấy A0, A1, A2, A3, A4, A5, A6, A7

                  04/06/2023

                  Phổ biến

                  Vũ trụ quan phương đông – 5. Tam Viên

                  Vũ trụ quan phương đông – 5. Tam Viên

                  20/06/2021
                  Bài giảng sửa chữa bảo dưỡng đường

                  Kỹ thuật bảo dưỡng và sửa chữa đường (phần 4)

                  22/06/2021
                  Kỹ thuật bảo dưỡng và sửa chữa đường

                  Kỹ thuật bảo dưỡng và sửa chữa đường (Phần: 3)

                  22/06/2021
                  Dốc ngang đường

                  Dốc ngang đường

                  01/07/2021
                  tvxaydung.com – Giá trị thực

                  Tvxaydung.com là blog chia sẻ thông tin và làm những điều mình yêu thích trong lĩnh vực xây dựng và công nghệ.

                  Liên hệ: 0969.313.833

                  Follow Us

                  Chuyên mục

                  • Đồ án, luận văn (3)
                  • Giao thông, hạ tầng (23)
                  • Khám phá (1)
                  • Phong thủy (12)
                  • Quy hoạch, xây dựng (1)
                  • Sách (3)
                  • Tài liệu (1)
                  • Tài liệu học tập (5)
                  • Thi công (1)
                  • Thủ thuật (16)
                  • Thư viện (1)
                  • Tiêu chuẩn quy phạm (47)
                  • Tiêu điểm (1)
                  • Tri thức (17)
                  • Uncategorized (1)

                  Bài viết gần đây

                  Những yếu tố quyết định việc lựa chọn cọc khoan nhồi và tường vây

                  Vật liệu đầu vào cọc khoan nhồi

                  04/08/2024
                  Những yếu tố quyết định việc lựa chọn cọc khoan nhồi và tường vây

                  Những yếu tố quyết định việc lựa chọn cọc khoan nhồi và tường vây

                  04/08/2024
                  • Home 1
                  • Privacy Policy
                  • Sample Page

                  © 2021 tvxaydung.com - All Right Reserved. Design by Wander Lam.

                  No Result
                  View All Result

                  © 2021 tvxaydung.com - All Right Reserved. Design by Wander Lam.

                  Welcome Back!

                  Login to your account below

                  Forgotten Password?

                  Retrieve your password

                  Please enter your username or email address to reset your password.

                  Log In