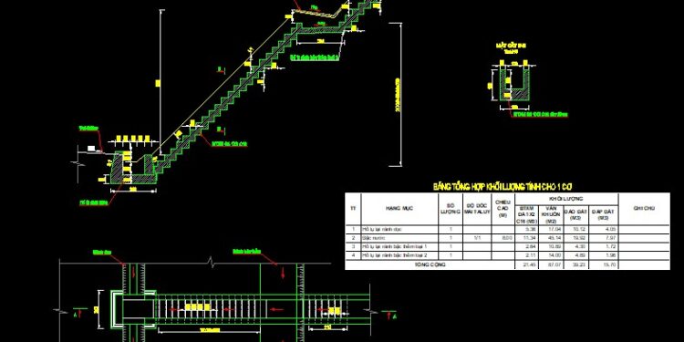
Ở những nơi rãnh thoát nước có độ dốc lớn, để đảm bảo công trình không bị xói lở do dòng nước phải làm dốc nước hoặc bậc nước.
Dốc nước và bậc nước thường được sử dụng ở các đoạn rãnh có dốc lớn nối tiếp giữa thượng lưu và hạ lưu cống với lòng suối tự nhiên, ở những đoạn rãnh thoát nước từ các công trình thoát nước đổ dọc theo taluy đường đào hay đường đắp, đoạn nối tiếp từ rãnh đỉnh về sông suối hoặc cầu cống.
Tải ngay tại: DOWNLOAD NOW







































